Waldemarlaan 1, Oisterwijk foto-1
Oisterwijk

Waldemarlaan 1

Waldemarlaan 1, Oisterwijk foto-0
Waldemarlaan 1, Oisterwijk foto-1
Waldemarlaan 1, Oisterwijk foto-2
Waldemarlaan 1, Oisterwijk foto-3
Waldemarlaan 1, Oisterwijk foto-4
Waldemarlaan 1, Oisterwijk foto-5
Waldemarlaan 1, Oisterwijk foto-6
Waldemarlaan 1, Oisterwijk foto-7
Waldemarlaan 1, Oisterwijk foto-8
Waldemarlaan 1, Oisterwijk foto-9
Waldemarlaan 1, Oisterwijk foto-2
Waldemarlaan 1, Oisterwijk foto-3
+10
Perceeloppervlakte
4.370 m²
Woonoppervlakte
305 m²
Inhoud
1.394 m³

Omschrijving

Aan de rand van Oisterwijk nabij het bos staat deze prachtige villa, waarvan u vanaf de weg slechts een glimp kunt opvangen. De oprijlaan, de prachtige tuin met haar grote rododendrons en de verfijnde architectuur van de villa laten uw gedachten afdwalen naar Zuid-Frankrijk, de plek waar deze villa ook niet zou misstaan. De lichte kleuren, ramen met raamluiken en het balkon boven de entree zorgen voor een villa met een prachtige uitstraling. Aan de rechterzijde staat een groot bijgebouw met een driedubbele garage en een werkkamer en ook heeft het een gastenverblijf annex poolhouse aan de achterzijde.

De Waldemarlaan is een mooie, met bomen omzoomde laan aan de zuidkant van Oisterwijk. In deze villawijk staan stuk voor stuk unieke villa’s op grote percelen met bomen en bosschages, waardoor onderlinge privacy gewaarborgd is. U woont op loopafstand van de bossen en vennen, het sfeervolle centrum, sportaccommodaties en goede onderwijsfaciliteiten. Zowel Tilburg, ’s-Hertogenbosch, Vught en Brainport Eindhoven bevinden zich allemaal binnen 15 tot 30 minuten met de auto, net als Eindhoven Airport.

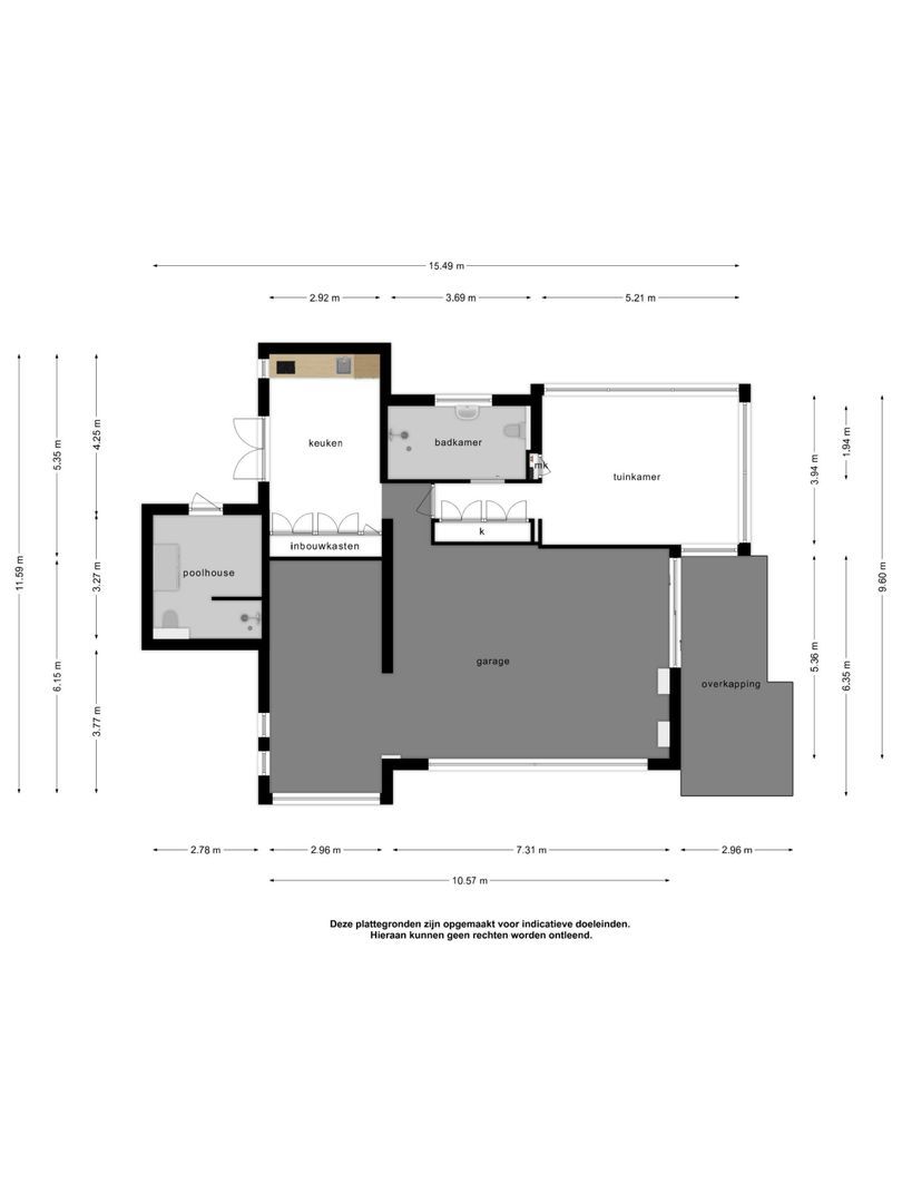
BEGANE GROND
Bewonder de tuin en de prachtige gevel, om vervolgens via het brede pad de entree te bereiken. Een glazen deur verbindt de hal met de ruime woonkamer, deze is gesitueerd aan de zuid- en westkant van de villa met een prachtig zicht op de tuin. Via een tweede zitgedeelte loopt u door naar de eetkamer, die op haar beurt weer grenst aan de keuken en het overdekt terras in de tuin. Grote ramen en een schuifpui zorgen er voor dat de woon- en eetkamer in een optimale verbinding staat met de prachtige tuin.

In de keuken staat een volledig op maat gemaakte keukenopstelling in L-vorm en een grote kastenwand. Het aanrechtblad en de achterwand zijn van zwart graniet en alle benodigde inbouwapparatuur (Miele) is ingebouwd.
Verder zijn er op de begane grond het zeer ruime gastentoilet, een ruime werkkamer met op maat gemaakt interieur en een tweede (werk)kamer. Deze kamer heeft een eigen, overdekte entree die grenst aan het gastenverblijf annex poolhouse met de garages.

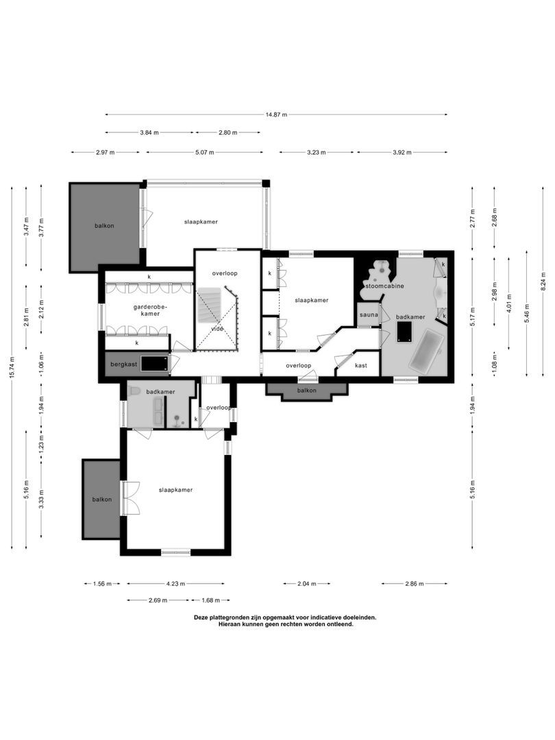
EERSTE VERDIEPING
Zacht tapijt, glad stucwerk en boogvormige doorgangen zorgen voor een overloop met een fantastische en ontspannen uitstraling. Op deze verdieping liggen drie slaapkamers, een kledingkamer en twee luxe badkamers.

Aan de voorzijde ligt de master bedroom met op maat gemaakte inbouwkasten en een balkon. Deze slaapkamer staat in verbinding met een eigen moderne badkamer, die is ingedeeld met een grote inloopdouche, toilet en een design wastafelmeubel.

De slaapkamer aan de achterzijde beschikt ook over een eigen balkon en in het rechter deel van de villa ligt de derde slaapkamer met eveneens op maat gemaakte inbouwkasten en de tweede, eveneens zeer luxe uitgevoerde badkamer. Deze badkamer heeft onder andere ook de beschikking over een groot ligbad, een infraroodsauna en een douche-/stoomcabine.

ZOLDER
Boven een deel van de eerste verdieping ligt een bergzolder die te bereiken is via een vlizotrap.

BIJGEBOUW
Rechts van de villa staat een groot bijgebouw, die qua architectuur perfect aansluit bij de villa. In totaal zijn er drie garages, voorzien van de benodigde infrastructuur om uw elektrische auto te laden. Verder zijn er in het bijgebouw nog een berging, een tweede keuken en een woon-/slaapkamer met badkamer. Perfect voor eigen gebruik, zeker in combinatie met het zwembad, en voor het ontvangen van gasten.

EXTERIEUR
Rondom de villa ligt een prachtige onder architectuur aangelegde en uitstekend onderhouden tuin met een optimale zonligging. De bomen en de hoge groenblijvende beplanting zorgen voor een optimale privacy. En ook naar het gazon heeft u geen omkijken, dat wordt dagelijks onderhouden door een robotmaaier. Achter in de tuin, onder de bomen, staat nog een fraai tuinhuis dat momenteel als atelier en leesruimte wordt gebruikt. Er zijn veel blikvanger in de tuin maar waar je niet omheen kunt is het verwarmde zwembad met jetstream, waar u oneindig baantjes kunt zwemmen en kinderen volop waterpret kunnen hebben.

BIJZONDERHEDEN
- De villa is uitstekend geïsoleerd en dus voorzien van dak-, gevel- en vloerisolatie;
- Hoogwaardige en luxe materialen;
- Vloerverwarming op de gehele begane grond en in de badkamer boven;
- De villa, is oorspronkelijk gebouwd in 1957 vervolgens in 2007 geheel gerenoveerd en in 2022 nog eens gemoderniseerd en uitgebouwd;
- Energielabel C.
Meer lezen
Minder lezen
Henk Honders
Uw qualis-makelaar
Henk Honders
Honders/Alting Makelaars
De Lind 18
5061 HW Oisterwijk
085-3301060
Contact met de makelaar Plan een bezichtiging

Kenmerken

Overdracht

Prijs
€ 2.650.000 k.k.
Status
Beschikbaar
Oplevering
In overleg
Objectcode
16628

Bouw

Type
Villa, Vrijstaande woning
Bouw
Bestaande bouw
Bouwjaar
1956
Onderhoud
Uitstekend
Onderhoud buiten
Uitstekend

Oppervlakten en inhoud

Wonen
305 m²
Perceel
4.370 m²
Overig
86 m²
Inhoud
1.394 m³

Indeling

Kamers
6
Slaapkamers
4
Verdiepingen
2

Energie

Energielabel
C
Isolatie
Dakisolatie, Muurisolatie, Vloerisolatie, Dubbel glas
Warm water
C.V.-ketel
Verwarming
C.V.-ketel, Vloerverwarming gedeeltelijk
Ketel
Atag Q51 (2018, Combi-ketel, Eigendom)

Buitenruimte

Balkon
Ja
Tuin
Tuin rondom
Schuur
Aangebouwd steen

Garage

Soort garage
Aangebouwd steen
Capaciteit
3
Voorzieningen
Voorzien van elektra, Met elektrische deur

Objectkenmerken

• Alarminstallatie
• Buitenzonwering
• Zwembad
• Stoomcabine
• Rookkanaal
• Schuifpui
• Sauna

Locatie

Waldemarlaan 1, 5062 JX Oisterwijk

• Aan bosrand
• Beschutte ligging
• In bosrijke omgeving

Meer lezen
Minder lezen

Plattegronden

Waldemarlaan 1, Oisterwijk plattegrond-0
Waldemarlaan 1, Oisterwijk plattegrond-1
Waldemarlaan 1, Oisterwijk plattegrond-2
Waldemarlaan 1, Oisterwijk plattegrond-3
Waldemarlaan 1, Oisterwijk plattegrond-4

Locatie

Street view
Map view
10 min
20 min
30 min
Reistijd
Voorzieningen

Bereken je reistijd

Kies je vervoer
Maximale reistijd
10 min.
20 min.
30 min.
Reis moment
Daluren
Piekuren
Toon resultaten

Voorzieningen

Geef hieronder aan welke voorzieningen u op de kaart wilt tonen.

Kies voorzieningen
School
Dokter
Apotheek
Restaurant
Sportschool
OV
Supermarkt
Ziekenhuis
Kerk
Tandarts
Bioscoop
Kapper
Toon resultaten

Ik heb interesse in
Waldemarlaan 1

Wilt u een bezichtiging inplannen of heeft u een vraag?
Neem via onderstaand formulier direct contact op met de Qualis-makelaar.

Bedankt voor uw aanvraag.

Bekijk als eerste ons nieuwste woningaanbod, ook in stille verkoop!
Maak nu een account aan

Sorry, we kunnen helaas niet met zekerheid vaststellen of u een mens of een geautomatiseerde bot/spammer bent. Hierdoor kunnen we het formulier dat u heeft ingevuld niet verzenden. Probeer het opnieuw of neem direct contact op met de makelaar via e-mail.

Er is iets mis gegaan met het versturen van het formulier.
Controleer of u alle velden (goed) heeft ingevoerd en probeer het nog een keer.

Gegevens

Door op verzenden te klikken, gaat u akkoord met de voorwaarden.

recaptcha
reCAPTCHA
PrivacyTerms
Henk Honders
Uw qualis-makelaar
Henk Honders
Honders/Alting Makelaars
De Lind 18
5061 HW Oisterwijk
085-3301060

Honders/Alting Makelaars
Account aanmaken
Bekijk stil aanbod

Maak een Qualis account aan en bekijk het grootste 'geheime aanbod' van Nederland.

Account aanmaken
Magazine
Bekijk de laatste interieur-
& lifestyle trends!

Qualis e-Magazine