Unfortunately the description has not been translated by the realtor. 
                                                Instead, the original Dutch text is shown below. 
                                                Please press the Google Translate button for a translation.
                                            
                                        
                                        
                                            
                                                 Google
                                                                                                                 Translate
   Google
                                                                                                                 Translate
                                            
                                        
                                     
                                    
                                        In de weidse polders van Zwartewaal bevindt zich dit bijzondere object, perfect voor de paardenliefhebber of degene die op zoek is naar rust, ruimte en veelzijdigheid. Dit prachtige terrein biedt tal van mogelijkheden, waaronder een pensionstal met uitgebreide voorzieningen én een casco woonhuis, dat volledig naar eigen smaak is in te richten.
Bij aankomst op het erf valt meteen het woonhuis op, gelegen aan het begin van het terrein. Het woonhuis is in casco staat, wat betekent dat u de vrijheid heeft om het geheel naar uw eigen stijl en wensen in te richten. Het huis bestaat uit een begane grond, een eerste verdieping en een  vliering, ideaal voor extra opslag. Deze woning biedt eindeloze mogelijkheden voor wie op zoek is naar een persoonlijk en op maat gemaakt thuis in een landelijke omgeving.
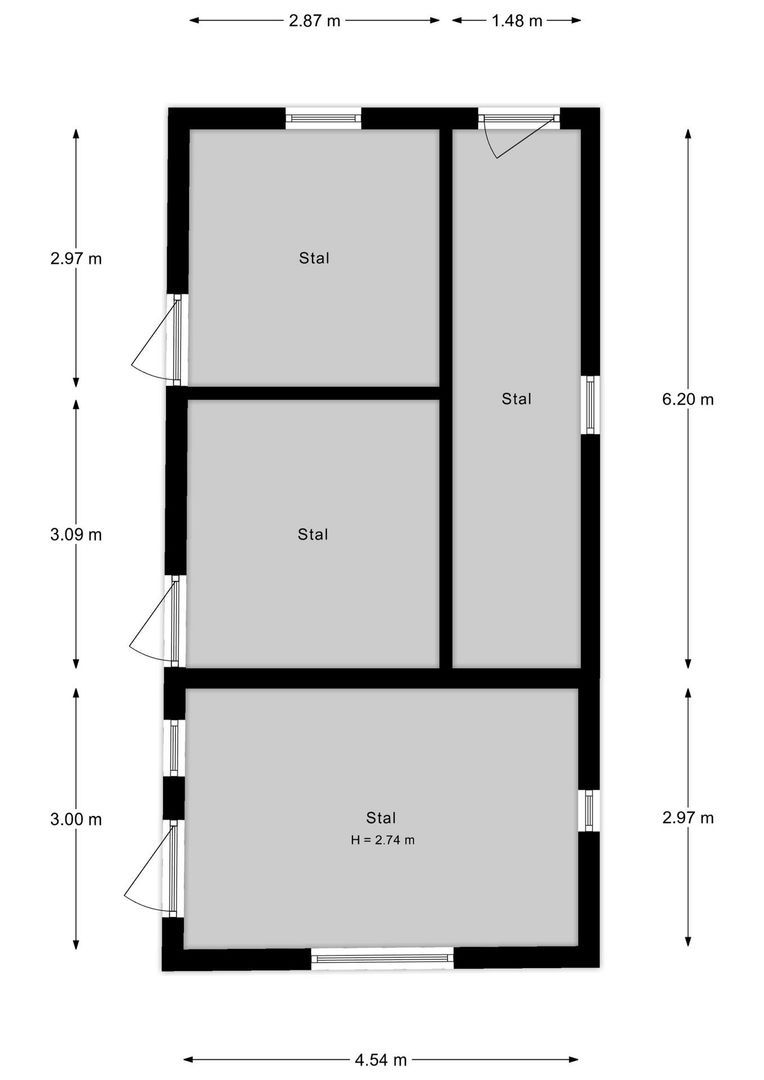
Voor de paardenliefhebbers zijn de voorzieningen indrukwekkend. Het erf beschikt over twee uitloopstallen, beide met een eigen stuk weide, ideaal voor het houden van paarden of andere dieren. Daarnaast is er een buitenstal met drie stallen en een buitenbak van 20x40 meter, perfect voor trainingen en recreatief rijden.
De binnenhal vormt het hart van deze pensionstal. Hier bevinden zich maar liefst 13 ruime stallen, een poetsplaats met warm- en koudwateraansluitingen, een zadelkamer met pantry én een doorgang naar de kantine. De binnenbak van 20x40 meter maakt het mogelijk om het hele jaar door comfortabel en overdekt te rijden, ongeacht het weer.
De kantine beschikt over een open keuken met een oven, gasfornuis en koel-/vriescombinatie, een zithoek en een (slaap)kamer. De badkamer is voorzien van een toilet, douchecabine en wastafel, en er is een extra toilet met fontein. Onder de trap bevinden zich de aansluitingen voor een wasmachine en droger. Op de eerste verdieping zijn twee bergruimtes en twee extra kamers, die bijvoorbeeld als kantoor kunnen worden ingericht.
Rondom het terrein is volop weidegang aanwezig, zodat uw paarden of andere dieren kunnen genieten van de vrijheid en ruimte. De ligging in de polders biedt een oase van rust, met toch alle nodige voorzieningen binnen handbereik.
Dit bijzondere object biedt niet alleen de ruimte en faciliteiten voor het houden van paarden, maar ook de kans om uw eigen droomwoning te realiseren op een prachtige locatie. Met een binnenbak, buitenbak, ruime stallen en veel weidegang, is het een ideale plek voor wie op zoek is naar een rustige, landelijke levensstijl met uitgebreide faciliteiten voor dierenliefhebbers.
Wij behartigen de belangen van de verkopende partij.
Neem uw eigen NVM aankoop makelaar mee!
Alle verstrekte informatie moet beschouwd worden als uitnodiging tot het doen van een bod of om in onderhandeling te treden.
Er kunnen geen rechten worden ontleend aan deze woninginformatie.