Unfortunately the description has not been translated by the realtor. 
                                                Instead, the original Dutch text is shown below. 
                                                Please press the Google Translate button for a translation.
                                            
                                        
                                        
                                            
                                                 Google
                                                                                                                 Translate
   Google
                                                                                                                 Translate
                                            
                                        
                                     
                                    
                                        Op deze idyllische plek, direct aan de rivier “de Giessen”, bevindt zich deze onder architectuur verhoogd gebouwde villa. De luxe woning is uiteraard van alle gemakken voorzien. Zo is er een inpandige garage voor meerdere auto's, 3 slaapkamers, 2 badkamers en een souterrain voorzien van een tweede zitkamer, sauna en wijnkelder. 
Wonen aan de Giessen is van elk jaargetijde volop genieten. ‘s Zomers de mogelijkheid om te varen vanaf uw eigen beschutte aanlegsteiger op de Giessen, of naar de rivier de Merwede waarvandaan alle vaarwegen van Nederland bereikbaar zijn. Natuurlijk behoren vissen en zwemmen ook tot de mogelijkheden. ‘s Winters, als er ijs ligt, gaat de schaatsklassieker ‘de Molentocht’ langs het huis. De diversiteit aan flora en fauna is heerlijk vanuit de woonkamer te volgen.
Onthaasten in de landelijke omgeving van het dorp Giessenburg waarbij, door de centrale ligging, de grotere steden Rotterdam, Utrecht en Breda binnen een half uur bereikbaar zijn. Gorinchem ligt op slechts 6 minuten rijden.
Indeling
Begane grond:
Via de automatisch bedienbare toegangspoort is de grote oprit met toegang tot de onderliggende garage te bereiken. Middels een statige entree met dubbele deuren komt u binnen in de royale entree. Daar bevinden zich een toilet, garderobe en een opentrap naar zowel de boven- als onder verdieping. Vanuit de hal is er middels dubbele stalen deuren toegang tot de zeer riante woonkamer met gashaard en twee halfronde erkers met prachtig uitzicht op de rivier. De spectaculaire hoge vide maakt het huis extra ruim en licht. 
Er is een prachtige op maat gemaakte exclusieve woonkeuken die voorzien is van alle gemakken. Er is meer dan voldoende werkruimte om heerlijk te koken maar ook ruimschoots voldoende kastruimte. Er is diverse inbouwapparatuur van Miele aanwezig en een groot kookeiland met plaats voor meerdere barkrukken en voorzien van Bora inductiekookplaat met geïntegreerde afzuiging. De afgesloten bijkeuken is zowel intern als extern te bereiken. Hier bevindt zich een tweede keukenopstelling met onder andere een Amerikaanse koelkast, een ingebouwde grillplaat en friteuse. In de bijkeuken bevindt zich tevens de aansluiting voor wassen drogen. 
De grote master bedroom met inbouwkasten en badkamer en suite bevindt zich ook op de woonverdieping. Dit maakt de woning levensloopbestendig. De en suite badkamer heeft een dubbele wastafel, inloopdouche en toilet.
De gehele woonverdieping is voorzien van een hotel airconditioning systeem, automatische zonwering en vloerverwarming.
1e verdieping:
Ruime overloop met toegang tot een balkon en tweede badkamer uitgerust met ligbad, toilet en wastafel met meubel. Aan de voorzijde een zonnige slaapkamer met inbouwkasten, airconditioning en balkon. Aan de waterzijde een slaapkamer met inbouwkasten en balkon. Vanuit hier is middels een luik met een vlizotrap de zolderverdieping bereikbaar. De grote tussenliggende ruimte - met airconditioning - is momenteel in gebruik als homeoffice. Hier kan eenvoudig een extra slaapkamer gerealiseerd worden.
Zolderverdieping:
Royale zolder met voldoende opbergruimte.
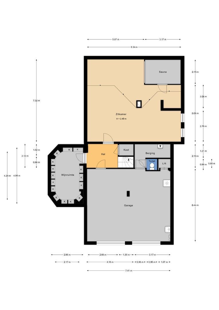
Souterrain:
Een relaxruimte/thuisbioscoop waar zowel volwassenen als kinderen zich kunnen vermaken. In deze grote ruimte bevindt zich ook een grote sauna voor meerdere personen en een bar. De separate riante wijnkelder is gemaakt om al uw wijnen op perfecte temperatuur te houden. 
De dubbele inpandige garage biedt plaats aan meerdere auto's, fietsen en/of motorfietsen. Hier bevindt zich ook een technische ruimte, extra toilet, apparatuur voor de waterontkalking en een goederenlift welke uitkomt in de keuken.
Tuin:
De woning is centraal gelegen op het 1245 m² perceel waardoor deze omsloten wordt door de tuin. Er zijn diverse terrassen, zowel aan de rivier als beschut achter het huis, waardoor er altijd een zonnige of schaduwrijke plek te vinden is. De zwemsteiger met buitendouche biedt plaats aan een boot van ca. 12 meter. De tuin is voorzien van een automatische sproei- en grasmaai installatie.
Bijzonderheden:
- Bouwjaar ca. 1990;
- Energielabel C;
- Woonoppervlakte ca. 381 m²;
- Inhoud ca. 1738 m³;
- Perceel ca. 1245 m²;
- Architectuur door Van der Padt Architecten;
- Binnenhuisarchitectuur door Eric Kuster;
- Airconditioning;
- Vloerverwarming;
- Goederenlift;
- Elektrisch bedienbare toegangspoort;
- Wijnkelder;
- Sauna;
- Dubbele garage;
- Alarmsysteem met camera's. 
Kolpa van der Hoek makelaars is de makelaar van de verkoper. Wij adviseren u uw eigen NVM-makelaar in te schakelen om uw belangen te behartigen bij de aankoop van dit object.
Toelichtingsclausule NEN2580
De Meetinstructie is gebaseerd op de NEN2580. De Meetinstructie is bedoeld om een meer eenduidige manier van meten toe te passen voor het geven van een indicatie van de gebruiksoppervlakte. De Meetinstructie sluit verschillen in meetuitkomsten niet volledig uit, door bijvoorbeeld interpretatieverschillen, afrondingen of beperkingen bij het uitvoeren van de meting.
In de akte zullen de volgende, extra artikelen worden opgenomen: een ouderdomsclausule en een toelichting op artikel over mogelijke aanwezigheid van asbest.
Koper is uitgenodigd de opgegeven oppervlakte(s) van het gekochte op juistheid te controleren en heeft inzage in het meetrapport waarbij woonruimte en overige ruimte gesplitst zijn.
Deze informatie is door Kolpa van der Hoek makelaars met de nodige zorgvuldigheid samengesteld. Onzerzijds wordt echter geen enkele aansprakelijkheid aanvaard voor enige onvolledigheid, onjuistheid of anderszins, dan wel de gevolgen daarvan. Alle opgegeven maten en oppervlakten zijn indicatief. Van toepassing zijn de NVM voorwaarden.